Beschrijving

Heerlijk wonen in Blankenham – ruimte, rust en comfort!

Welkom in het prachtige Blankenham, een charmant dorp in de gemeente Steenwijkerland, waar het leven net een tikje rustiger en prettiger is. 
In deze verzorgde eindwoning geniet u van het beste van twee werelden: landelijke rust én volop wooncomfort. En het mooiste? U kunt er zó in!

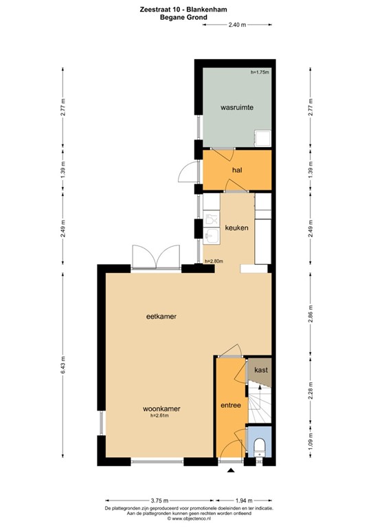
Bij binnenkomst ervaart u al het comfort al van de woning. Via de entree, die toegang geeft tot het toilet en de trap naar de eerste verdieping, komt u in de ruime woon-/eetkamer.
Een heerlijke ruimte, waar u in de ochtend kunt genieten van de ochtendzon en in de middag/avond, via de openslaande deuren, naar de achtertuin kan, om daar verder te genieten van de rust.
Via de speelhoek, maar ook eenvoudig in te richten voor een ander doel, komt u in een praktische, maar knusse open keuken. Verder doorlopend vindt u tweede hal die toegang geeft tot de achtertuin en de wasruimte c.q. bijkeuken.
Ideaal om uw spullen in op te ruimen en toch bij de hand te hebben.

Op de eerste verdieping bevinden zich drie, in grootte variërende, slaapkamers, één met een royale inbouwkast.
Door het verplaatsen van een muur naar één van de slaapkamers is er een stijlvolle en frisse badkamer gecreëerd, voorzien van ruime inloopdouche en een wastafelmeubel.

Bovenin de woning is een handige bergzolder, ideaal voor seizoensspullen of extra opbergruimte.

De, goed op de zon gelegen, tuin is op verzorgd en onderhoudsvriendelijk en  geeft u volop privacy en mogelijkheden voor speelplezier, tuinieren of gewoon lekker ontspannen in de zon.

Achter in de tuin vindt u de royale garage mét vliering.
Ideaal voor alle creativiteit, hobby’s, een auto, fietsen én gereedschap en het opbergen van spullen.


Nog even de belangrijkste punten op een rijtje:
•	Hoekwoning op een ruim kavel in landelijk Blankenham
•	Instapklaar en goed onderhouden
•	Energielabel C (geldig t/m 06-05-2035)
•	Sfeervolle keuken en bijkeuken/wasruimte
•	3, in grootte variërende, slaapkamers
•	Verzorgde badkamer met inloopdouche
•	Woonoppervlakte: 91,60 m²
•	Perceel oppervlakte: 191 m²
•	Royale garage mét vliering
•	Kindvriendelijke en rustige omgeving

Bent u op zoek naar een fijne woning waar u meteen kunt genieten van rust, ruimte en comfort?

Dan is deze hoekwoning in Blankenham zeker het bekijken waard!

--------------------------------------------------------

Blankenham is een charmant en rustig lintdorp in de gemeente Steenwijkerland, gelegen aan de rand van Nationaal Park Weerribben-Wieden, midden in het prachtige waterrijke landschap van Overijssel. 
Het dorp ligt tussen Vollenhove en Kuinre, niet ver van Steenwijk en Emmeloord.

Blankenham telt enkele honderden inwoners en staat bekend om zijn landelijke ligging, weidse uitzichten en gemoedelijke sfeer. 
Hier woont u nog écht in de rust van het platteland, met volop ruimte, natuur en vriendelijke buren.
Ondanks de landelijke ligging zijn de voorzieningen van Oldemarkt, Steenwijk en Emmeloord snel bereikbaar, zowel met de auto als de fiets. 
Scholen, winkels en sportverenigingen bevinden zich in de omliggende dorpen en stadjes.
Voor natuurliefhebbers is Blankenham een ideale uitvalsbasis: wandelen, fietsen, varen en genieten van het landschap kan hier letterlijk voor de deur. 
Ook de ligging aan de dijk langs de voormalige Zuiderzee (nu het Zwarte Meer) geeft het dorp een bijzondere uitstraling.

Kenmerken